The desert house was our experimental model of a family home, constructed from prefabricated elements with a strong emphasis on its relationship with the environment. Situated in the unique climate of the Tangier region in Morocco, it is designed to harness natural factors for efficient passive cooling and heating. The house is designed with plenty of openings on opposite walls for natural airflow, reducing the need for air conditioning. Courtyard in the center enhances this effect.
CLIMATE: The layout minimizes the number of rooms facing west, as this is where the sun’s intensity is strongest. The largest openings are positioned on the northern side to allow the entry of cool air. Openings on the southern and western sides must be protected by a mashrabiya to shield against the hot Cherguia wind. The entrance, located on the western side, is shaded by the upper floor, providing natural cooling. Additionally, the inner courtyard is covered with a pergola, offering a pleasant, shaded retreat within the house and over the pool are as well. Adding lower plants helps to to filter sandy Cherguia wind. Smaller windows are positioned on upper floors beacuse of intense summer sun.
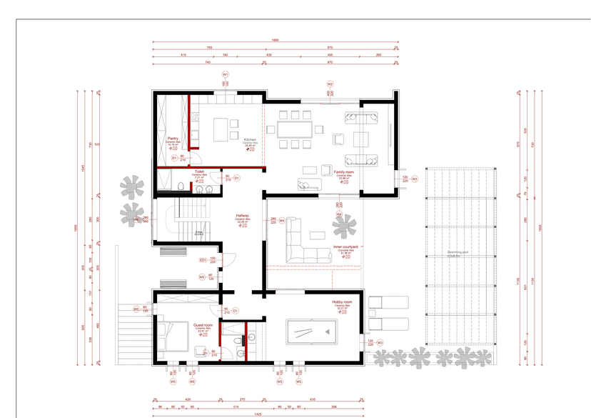
In our design process, we aimed to incorporate partition panels for certain walls in key interior zones. This approach enhances spatial flexibility, allowing rooms to be adapted as needed. For example, the public module can function as a single guest room with a hobby space or be reconfigured into two separate guest rooms, each with its own bathroom.
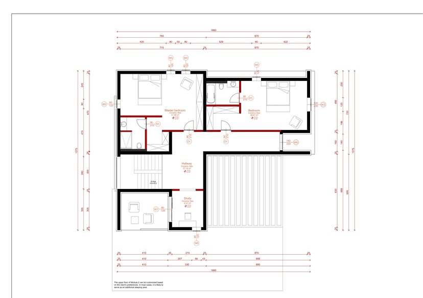
The upper floor of Volume 2 can be customized based on the client’s preferences. It is likely to serve as additional sleeping area.
The kitchen can also be fully enclosed and separated from the living room or family space, providing the option for an open or closed layout depending on the occupants’ preferences. By integrating these adaptable elements, we create a home that can evolve with its users, offering both functionality and versatility within a compact footprint.
The interplay of light and shadow enhances comfort and aesthetics. By strategically positioning openings and shading elements, we create a dynamic atmosphere that changes throughout the day. The mashrabiya screens filter sunlight, casting intricate patterns that shift with time.
Prefabricated concrete walls are divided into modules. Each module is designed for efficient transportand assembly. The modular division allows for easier expansion or reconfiguration of spaces while maintaining structural integrity. Vertical joints between the modules are carefully positioned to ensure stability, thermal movement control, and waterproofing. Additional reinforcement in the form of a hidden beam with a height of 40 cm is used to bridge larger spans. This beam is integrated within the structure to maintain the clean lines of the design
while providing extra support. By concealing the beam within the wall assembly, the aesthetic of the prefabricated concrete wall is preserved, and the overall structural stability is enhanced, allowing for wider openings or longer spans without compromising load-bearing capacity. This hidden reinforcement ensures the durability and safety of the construction, especially in areas requiring additional strength for heavier loads.







